Latest land and planning achievements

Arial illustration of plans for Station Road, Halisham development

Station Road, Hailsham

Planning permission granted for 200 new homes in Wealden, Sussex

  • Size of opportunity: 200 homes​

  • Proximity to office: 75 miles (90 minutes)​

  • Current planning designation: RM consent​

  • Likely first legal completion: Q4 2025​

Arial illustration of plans for Meon Vale, Long Marston development

Meon Vale, Long Marston

Reserved Matters consent granted for 109 new homes in Stratford-upon-Avon, Warwickshire

  • Size of opportunity: 109 homes​​

  • Proximity to office: 50 miles (one hour)​

  • Current planning designation: RM approved at appeal​

  • Likely first legal completion: Q4 2025​

Arial illustration of plans for Shaw Lane, Elland development

Shaw Lane, Elland

Planning permission granted for 233 new homes in Calderdale, Yorkshire

  • Size of opportunity: 233 homes​

  • Proximity to office: 27 miles (45 minutes)​

  • Current planning designation: Resolution to grant​

  • Likely first legal completion: August 2025​

Arial view of where the Red Rose Lane, Blackmore development will be located

Red Rose Lane, Blackmore

Planning permission granted for 37 new homes in Brentwood, Essex

  • Size of opportunity: 37 homes

  • Proximity to office: 8 miles

  • Current planning designation: Resolution to grant

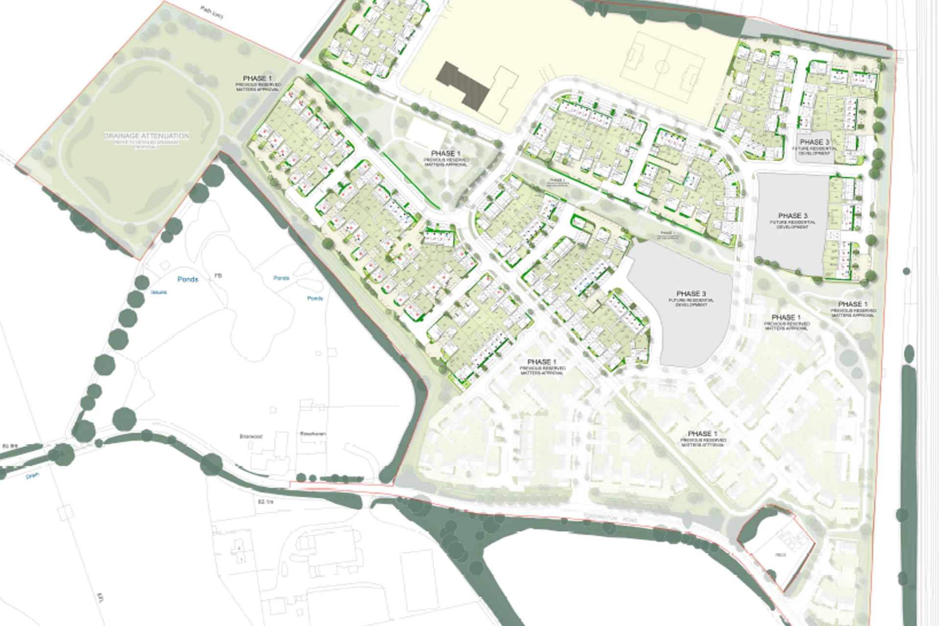
Arial illustration of plans for Toddington Road, Harlington development

Toddington Road, Harlington

Reserved Matters consent granted for 226 new homes in Bedfordshire

  • Size of opportunity: 226 homes (of a larger 400 dwelling allocation)

  • Proximity to office: 21 miles (30 minutes)​

  • Current planning designation: Reserved Matters received 29th January 25

  • Likely first legal completion: FY 2025​

Arial illustration of plans for Tasley Gateway, Bridgnorth development

Tasley Gateway, Bridgnorth

Reserved Matters consent granted for 323 new homes in Shropshire

  • Size of opportunity: 323 homes

  • Proximity to office: 45 miles (one hour)

  • Current planning designation: Reserved Matters approved

  • Likely first legal completion: July 2026​

Arial illustration of plans for Finberry, Ashford development

Finberry, Ashford

Reserved Matters consent granted for 172 new homes in Kent

  • Size of opportunity: 172 homes

  • Proximity to office: 58 miles (one hour)

  • Current planning designation: Reserved Matters approved

  • Likely first legal completion: FY 2026

Further planning permissions achieved

2,265

homes

Kilnwood Vale, Faygate

2,000

homes

Arborfield Garden Village, Berkshire

1,750

homes

Hunts Grove, Gloucestershire

1,290

homes

Harry Stoke, Bristol

1,100

homes

Finberry, Ashford

1,100

homes

Ipswich, Suffolk

783

homes (part of a consortium)

Horley, Surrey

520

homes

Bury Farm, North Whiteley

494

homes

North Wokingham

425

homes

Westwood Heath, Warwick

414

homes

South Chippenham, Wiltshire

380

homes

Andrews Lane, Cheshunt

Local Plan allocations secured

1,700

homes with large scale employment

Longcross, Surrey

c.880

homes

Warren Farm, Chelmsford

c.1,200

homes

Shenley Park, Milton Keynes

c.125

homes

Nags Head Lane, Brentwood

c.35

homes

Red Rose Lane, Brentwood

c.81

homes

Dunton Hills Garden Village

c.650

homes

Hunts Grove Extension